Buckleys
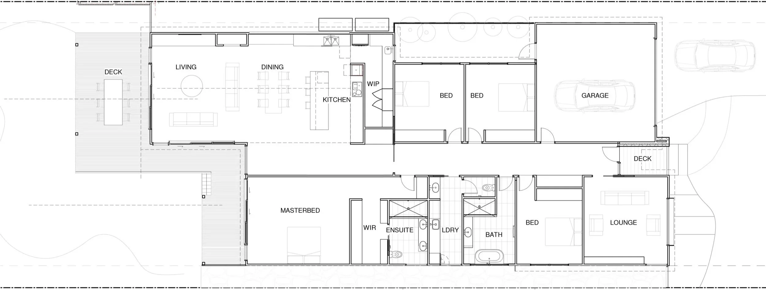
Located in the heart of Old Point Lonsdale, the house replaces a much loved multi generational beach home. The old house had seen better days and didn’t provide much protection for the elements, so the family decided to create a new space that would serve the family for many more years to come. Sympathetic to surrounding architecture, the design provide a modern interpretation of the traditional beach holiday home. Built with sustainable and passive principles in mind, the house will provide comfort and protection for the warm summer days, but more importantly cool windy winters. With time the landscape will surround the new house, and it will settle back into its coastal environment.
Builder: Victorian Built Photographer: Nic Stephens